障がい者福祉施設建設のための募金にご協力ください。
募金ご協力のお願い
時下、皆様方におかれましては、ますますご清祥のこととお喜び申し上げます。
日頃は、刈谷地区心身障害児者を守る会(以下「守る会」)並びに社会福祉法人ひかりの家(以下「ひかりの家」)へのご支援、ご協力をいただき厚く御礼を申し上げます。
「守る会」は、家に閉じこもっている障がいのあるお子さんに外の空気を吸ってもらおうと、昭和40年に保健師や民生委員を中心に有志が集まり設立したのが始まりでした。その後皆様のご支援のもと、障がい児の療育援助活動「一日保育」、心身障害児通園施設「ひかりの家」開所、平成14年「ひかりの家」社会福祉法人認可と進んでまいりました。詳しくは、沿革をご参照いただきたく存じます。
「ひかりの家」は、平成18年に重症心身障がい者通所施設「ひかりワークス風鈴」を開所し、特別支援学校卒業後の重症心身障がいのある方が利用していますが、今では定員に達し、新たな利用者の受け入れは難しくなっています。
しかし現在、重度の心身障がいのある子ども達が、刈谷市内に20名程おられますが、卒業後の居場所を求め、将来に不安を抱えながら学校へ通っています。この現状をなんとかしたいと、その親達によって立ち上げられた団体「アシストりん」並びに刈谷市肢体不自由児者父母の会からの要望を受け、「ひかりの家」は刈谷市のご協力を得て、新たな施設の建設・運営を計画しています。
この施設の概要、完成予想図、資金計画並びに沿革は以下のとおりです。
そこで、この度私たちは施設建設に不足している資金3,000万円を目標に、募金活動を行います。
ぜひ、趣旨にご賛同いただき、格別のご厚情を賜りますようお願い申し上げます。
募金要項
募金目標額
3000万円
募金期間
平成28年10月から平成31年3月
募金金額
個人
①一口3,000円(何口でも)
②募金箱などに寄付をお願いします。
もちろんいくらでも結構です。
法人・団体
1口10,000円(口数にかかわらずいくらでも結構です。)
募金方法
①郵便振替
郵便口座から入金する場合
口座番号 00880‐6‐153998
加入者名 社会福祉法人ひかりの家
②他金融機関から振込頂く場合(ゆうちょ銀行振込)
店 番 〇八九(ゼロハチキュウ)店
貯金種目 当座
口座番号 0153998
③現金
募金事業の協力者の方へお支払いいただくか、守る会へ直接お持ち下さい。
※寄付金控除について
社会福祉法人ひかりの家へのご寄付については、寄付金控除税制上の優遇措置が受けられます。
詳細については、事務局へお問い合わせください。
新施設概要
施 設 名 重症心身障がい者通所施設「(仮称)第二風鈴」
定 員 20人
場 所 刈谷市神明町一丁目10番地1 ※刈谷市より無償貸与
着 工 平成30年9月頃
開 所 平成31年4月予定
施 設 内 容 重度重複の身体障がい者の方が作業等を通して社会参加する施設
建設並びに運営主体 社会福祉法人ひかりの家
資金計画
| 収 入 | 支 出 | ||
| 国庫補助 | 88,800,000円 | 建設工事費 | 128,540,000円 |
| 法人自主財源 | 30,000,000円 | 設備整備費 | 11,260,000円 |
| 不足金 | 30,000,000円 | 準備諸経費 | 9,000,000円 |
| 148,800,000円 | 148,800,000円 | ||
完成予想図
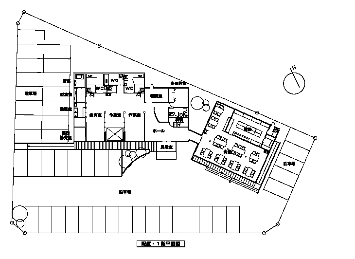
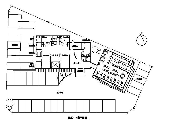
平面図
建設予定地
|
昭和37年 11月 |
刈谷地区心身障害児者を守る会の前身となる「二百円貯金」募金活動が始まる。 |
|
昭和40年 9月 |
刈谷地区心身障害児者を守る会設立総会を行う。 |
|
昭和43年 1月 |
在宅障がい児のための「一日保育」を開始する。 |
|
昭和48年 1月 |
障がい児の集団生活の場として、刈谷市原崎町に「ひかりの家」が開所する。 |
|
昭和58年 3月 |
刈谷市小山町に新「ひかりの家」を移転開所し、4月より保育を開始する。 |
|
平成14年 3月 |
社会福祉法人ひかりの家が認可され、事業を法人へ移管する。 |
|
平成18年 4月 |
重症心身障がい者通所施設「ひかりワークス風鈴」が刈谷市新田町に開所する。 |
|
平成22年 5月 |
刈谷地区心身障害児者を守る会が「緑綬褒章(緑綬褒状)」を受章する。 |
|
平成27年 9月 |
刈谷地区心身障害児者を守る会が設立50周年を迎える。 |



